Capannone in vendita

Mozzate, Via Giuseppe Di Vittorio
6 locali 6 locali
2800 Mq 2800 Mq
7 bagni 7 bagni

Capannone in vendita

Mozzate, Via Giuseppe Di Vittorio

Descrizione annuncio

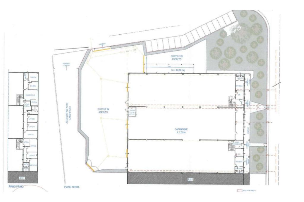
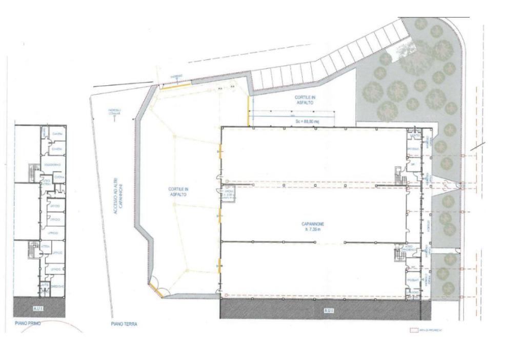
MOZZATE - Nei pressi della Strada Statale Varesina, si propone un capannone ristrutturato in ottimo stato.

Immobile libero e disponibile anche in locazione a 12.000€ al mese

L'area capannone si estende per 2400 mq circa: è dotata di impianto d'aria compressa, illuminazione, altezza 6,5 m.

Al primo piano si aggiungono circa 250 mq di uffici, in buono stato e dotati di impianti di riscaldamento e condizionamento, e un appartamento trilocale.

L'immobile è indipendente su tre lati, con l'area esterna adibita a giardino ben curato sul fronte uffici, mentre sul retro si estende un ampio piazzale nel quale sono presenti una tettoia di circa 90mq, zona parcheggio e piazzale che consente le manovre di ogni tipo di mezzo.

Mostra tutto

Nelle vicinanze

Trasporto pubblico Trasporto pubblico
Mozzate
Mozzate
1,0 Km
Trasporto pubblico
240 m
Mozzate - Via Santa Maria 26
Mozzate - Via Santa Maria 26
440 m
Cislago
Cislago
1,8 Km
Locate Varesino-Carbonate
Locate Varesino-Carbonate
2,9 Km
Scuole Scuole
Scuola Primaria L. Castiglioni
470 m
Istituto Comprensivo di Cislago
1,4 Km
Scuole
1,6 Km
Scuola Media M. E. Bossi
1,6 Km
Scuola Media "Aldo Moro"
1,7 Km
Farmacia Farmacia
Farmacia San Martino
580 m
Bernardelli Caione
610 m
Farmacia Frigerio Dr. Giovanni
1,4 Km
Farmacia Volta
2,3 Km
La Farma S.N.C.
2,8 Km
Supermercati Supermercati
Conad
270 m
MD
300 m
Supermercati
1,5 Km
Lidl
2,1 Km
Fresco Mercato
2,1 Km
Negozi Negozi
Supermarket Sousse
320 m
Negozi
670 m
Panificio Moroni
720 m
Centro Moda Belli
740 m
Ghioldi
1,0 Km
Bar Bar
Garage Bar
280 m
le Magnolie
290 m
Aghi's Bar
350 m
VII Secolo
430 m
Pinko Cafè
610 m
Ristoranti Ristoranti
Haru
180 m
Ristorante San Marco
290 m
Stuzzicando S.r.l.
290 m
Quàter e Tri Sett
510 m
Arte Gusto & Musica
620 m
Mostra tutto

Caratteristiche

Rif.:
60986578
Piano:
1 di 2 (Piano terra)
Posti auto:
40
Condizionamento:
Autonomo
Ascensore:
No
Riscaldamento:
Autonomo
Mostra tutto
Prezzo Prezzo
€ 2.000.000
Rata mutuo Rata mutuo
€ 9.320 / mese
Spese annue Spese annue
€ 0
Anche in affitto a
Proponi il tuo prezzoProponi il tuo prezzo

Altre caratteristiche

Descrizione dei locali
Bagno Con Finestra

Classe Energetica

D
D
D
D
D
D
D
D
D
EP globale non rinnovabile:
231.77 kW h/m² anno
EP globale rinnovabile:
8.87 kW h/m² anno
EP invernale del fabbricato:
EP estiva del fabbricato:
Anno di costruzione:
1970
Riscaldamento:
Autonomo
Tipo impianto:
Ad aria
Tipo alimentazione:
Aria

Ti interessa visionare l'immobile?

Fissa un appuntamento  Fissa un appuntamento

Richiedi informazioni

Clicca su Leggi per aprire l'informativa
* Questi campi sono obbligatori

Calcola il tuo mutuo

Semplice e senza impegno
Anticipo

( % )
Mutuo

( % )

pochi semplici passi

inserisci i tuoi dati
Questionario completato
Grazie per aver richiesto un appuntamento senza impegno con un nostro Consulente del Credito e Assicurativo.

Hai inserito correttamente tutti i dati necessari e a breve riceverai una e-mail con un link da convalidare per inviare i tuoi dati.
Affiliato
Studio Industriale 2 Snc
P.zza Sandro Pertini, 73 21042 Caronno Pertusella (VA)

Il nostro staff


  • Marco Emilio Sala
    Affiliato

  • Cristiana Andreoni
    Affiliata
P.zza Sandro Pertini, 73 21042 Caronno Pertusella (VA)
Zona: Caronno-Saronno-Origgio-Uboldo-Turate-Cislago-Garbagnate-Cesate
Mostra su mappa
Orari: dal lunedì al venerdì dalle 9.00 alle 13.00 e dalle 14.00 alle 19.30 - sabato su appuntamento
Affiliato
Studio Industriale 2 Snc
P.zza Sandro Pertini, 73 21042 Caronno Pertusella (VA)

2025 Tecnocasa Franchising S.p.A. - P. IVA 08365160152 - Via Monte Bianco 60/A 20089 Rozzano (MI). Ogni agenzia ha un proprio titolare ed è autonoma. Privacy policy | Policy utilizzo | Cookie policy