Capannone in affitto

Mozzate, Via Tarantelli
4 locali 4 locali
1400 Mq 1400 Mq
1 bagno 1 bagno

Capannone in affitto

Mozzate, Via Tarantelli

Descrizione annuncio

MOZZATE - Nella zona industriale lungo la SS 233 Varesina, si propone un capannone industriale, in buono stato.

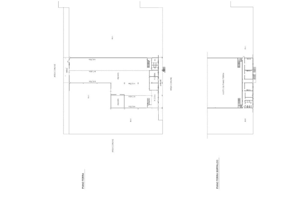
L'immobile è composto da un'area capannone di circa 1200 mq, senza pilastri, con altezza interna di circa 7 metri, cui si aggiungono i servizi igienici e 200 mq circa di uffici al primo piano.

Il capannone dispone di un portone carraio in area capannone alti 4 metri per carico - scarico anche di bilici, che affiacciano su un'area condominale condivisa coi capannoni adiacenti.

L'immobile è subito disponibile e proposto anche in vendita a 950.000€

Mostra tutto

Nelle vicinanze

Trasporto pubblico Trasporto pubblico
Mozzate
Mozzate
830 m
Mozzate - Varesina
Mozzate - Varesina
610 m
Mozzate FNM
Mozzate FNM
810 m
Locate Varesino-Carbonate
Locate Varesino-Carbonate
1,6 Km
Scuole Scuole
Scuola Media M. E. Bossi
520 m
Scuola Primaria L. Castiglioni
960 m
Istituto Comprensivo di Cislago
2,7 Km
Scuole
2,9 Km
Scuola Media "Aldo Moro"
3,0 Km
Farmacia Farmacia
Bernardelli Caione
890 m
La Farma S.N.C.
1,5 Km
Farmacia San Martino
1,8 Km
Farmacia Frigerio Dr. Giovanni
2,7 Km
Farmacia San Luca
3,0 Km
Supermercati Supermercati
Conad
1,3 Km
Lidl
1,6 Km
MD
1,6 Km
Supermercati
2,8 Km
Negozi Negozi
Panificio Moroni
680 m
Centro Moda Belli
830 m
Negozi
880 m
Ghioldi
890 m
Supermarket Sousse
1,6 Km
Bar Bar
Bogotà
310 m
Atikum Bar Sport
520 m
Bar Centrale
820 m
Fashion Cafè
830 m
Pinko Cafè
930 m
Ristoranti Ristoranti
Bar Trattoria Piripicchio
330 m
La Premiata
340 m
Gao Dynasty's
380 m
Foxes
430 m
La Taverna del Goloso
430 m
Mostra tutto

Caratteristiche

Rif.:
61125937
Piano:
1 di 2 (Piano terra)
Posti auto:
3
Condizionamento:
Predisposizione impianto
Ascensore:
No
Riscaldamento:
Autonomo
Mostra tutto
Prezzo Prezzo
€ 5.500 / mese
Spese annue Spese annue
€ 0
Anche in vendita a

Altre caratteristiche

Descrizione dei locali
Bagno Con Finestra

Classe Energetica

F
F
F
F
F
F
F
F
F
EP globale non rinnovabile:
132.98 kW h/m² anno
EP globale rinnovabile:
2.82 kW h/m² anno
EP invernale del fabbricato:
EP estiva del fabbricato:
Anno di costruzione:
1980
Riscaldamento:
Autonomo
Tipo impianto:
Ad aria
Tipo alimentazione:
Aria

Ti interessa visionare l'immobile?

Fissa un appuntamento  Fissa un appuntamento

Richiedi informazioni

Clicca su Leggi per aprire l'informativa
* Questi campi sono obbligatori
Affiliato
Studio Industriale 2 Snc
P.zza Sandro Pertini, 73 21042 Caronno Pertusella (VA)

Il nostro staff


  • Marco Emilio Sala
    Affiliato

  • Cristiana Andreoni
    Affiliata
P.zza Sandro Pertini, 73 21042 Caronno Pertusella (VA)
Zona: Caronno-Saronno-Origgio-Uboldo-Turate-Cislago-Garbagnate-Cesate
Mostra su mappa
Orari: dal lunedì al venerdì dalle 9.00 alle 13.00 e dalle 14.00 alle 19.30 - sabato su appuntamento
Affiliato
Studio Industriale 2 Snc
P.zza Sandro Pertini, 73 21042 Caronno Pertusella (VA)

2026 Tecnocasa Franchising S.p.A. - P. IVA 08365160152 - Via Monte Bianco 60/A 20089 Rozzano (MI). Ogni agenzia ha un proprio titolare ed è autonoma. Privacy policy | Policy utilizzo | Cookie policy